FAMILY MOBILE HOME SUPER ARKTIK ® FAMILY TURNKEY: READY FOR IMMEDIATE DELIVERY AND LIVING.
Do you need to solve your housing situation as early as January? At a great price, with a high standard of equipment, and with the option to finance the purchase through a mortgage loan? Then you’ve just found the right solution! The Super Arktik ® FAMILY family home fully equipped, including documentation for the building authority, for 66,550 €. Ready for delivery already in JANUARY 2024! Come and see it in person and experience it in Ružomberok.
Basic characteristics of the house.
- Turnkey price including project documentation for the building authority: 66,550 €.
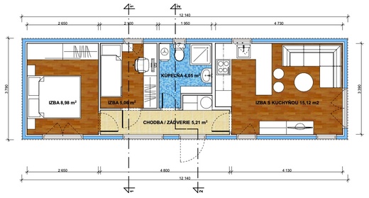
- Modern layout with three rooms, ceiling height up to 260 cm, a separate bathroom, and an entrance hallway.
- Extremely energy-efficient home, energy certificate class A.
- Convenient financing available, including a mortgage loan.
What is included in the Super Arktik ® FAMILY home.
- Maintenance-free Kerrafront façade system, Alpine Oak color.
- Kingas standing seam metal roofing, Anthracite color.
- Full-year thermal insulation.
- Exterior and interior lighting.
- Complete water, electricity, and waste installations including inspections.
- WiFi digital thermostat in every room.
- Plastic 7-chamber windows with triple glazing, Anthracite color.
- Modern entrance door, Anthracite color.
- Elegant Voster interior doors, Italian walnut color.
- Heat recovery unit with intelligent ventilation.
- Air conditioning unit.
- Electrical sockets, TV connection, internet connection.
- Interior wall panels Strama, White color combined with Grey Concrete.
- Low-cost, maintenance-free underfloor infrared heating Heatflow ®
- Highly durable laminate flooring Resist Hause.
- Vinyl flooring in the bathroom, Ancona color.
- Luxuriously equipped bathroom with shower, washbasin with cabinet, toilet, faucets, water heater, washing machine pre-installation, and radiator.
- Iris L-shaped kitchen unit with induction glass-ceramic cooktop, convection oven, extractor hood, sink with faucet, built-in refrigerator, and microwave. Door fronts and cabinet color: White; worktop and backsplash color: Black Slate.
- Professional placement of the family home on the plot.
- Transport of the Super Arktik ® FAMILY family home anywhere in Slovakia.
Do you need more information or photos of this family home? Contact us by phone at +421 911 333 413, or by email at info@mobilnydom.eu
FAMILY MOBILE HOME SUPER ARKTIK ® FAMILY TURNKEY: READY FOR IMMEDIATE DELIVERY AND LIVING.
Do you need to solve your housing situation as early as January? At a great price, with a high standard of equipment, and with the option to finance the purchase through a mortgage loan? Then you’ve just found the right solution! The Super Arktik ® FAMILY family home fully equipped, including documentation for the building authority, for 66,550 €. Ready for delivery already in JANUARY 2024! Come and see it in person and experience it in Ružomberok.
Basic characteristics of the house.
- Turnkey price including project documentation for the building authority: 66,550 €.
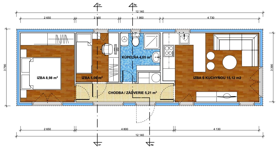
- Modern layout with three rooms, ceiling height up to 260 cm, a separate bathroom, and an entrance hallway.
- Extremely energy-efficient home, energy certificate class A.
- Convenient financing available, including a mortgage loan.
What is included in the Super Arktik ® FAMILY home.
- Maintenance-free Kerrafront façade system, Alpine Oak color.
- Kingas standing seam metal roofing, Anthracite color.
- Full-year thermal insulation.
- Exterior and interior lighting.
- Complete water, electricity, and waste installations including inspections.
- WiFi digital thermostat in every room.
- Plastic 7-chamber windows with triple glazing, Anthracite color.
- Modern entrance door, Anthracite color.
- Elegant Voster interior doors, Italian walnut color.
- Heat recovery unit with intelligent ventilation.
- Air conditioning unit.
- Electrical sockets, TV connection, internet connection.
- Interior wall panels Strama, White color combined with Grey Concrete.
- Low-cost, maintenance-free underfloor infrared heating Heatflow ®
- Highly durable laminate flooring Resist Hause.
- Vinyl flooring in the bathroom, Ancona color.
- Luxuriously equipped bathroom with shower, washbasin with cabinet, toilet, faucets, water heater, washing machine pre-installation, and radiator.
- Iris L-shaped kitchen unit with induction glass-ceramic cooktop, convection oven, extractor hood, sink with faucet, built-in refrigerator, and microwave. Door fronts and cabinet color: White; worktop and backsplash color: Black Slate.
- Professional placement of the family home on the plot.
- Transport of the Super Arktik ® FAMILY family home anywhere in Slovakia.
Do you need more information or photos of this family home? Contact us by phone at +421 911 333 413, or by email at info@mobilnydom.eu